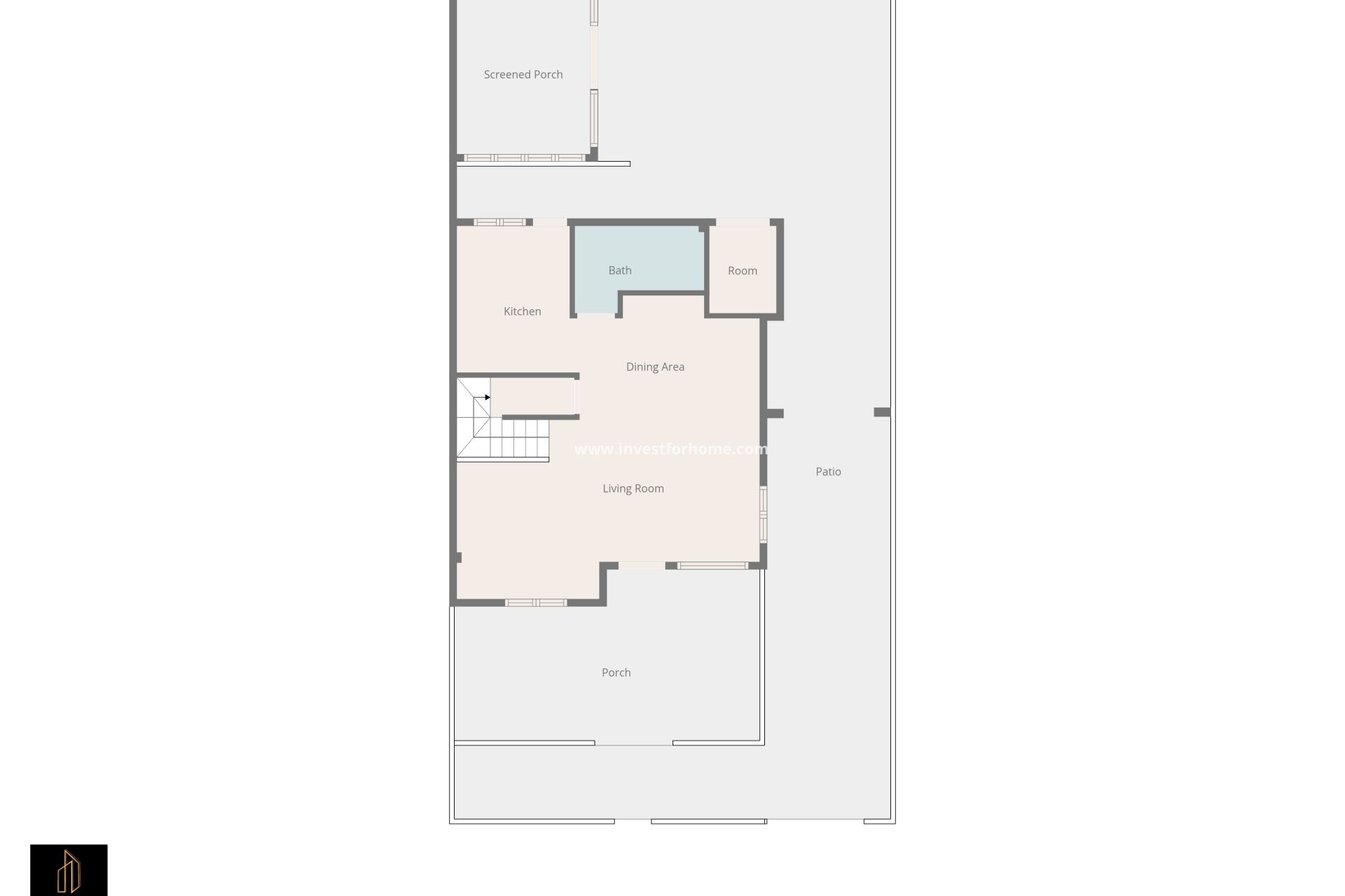
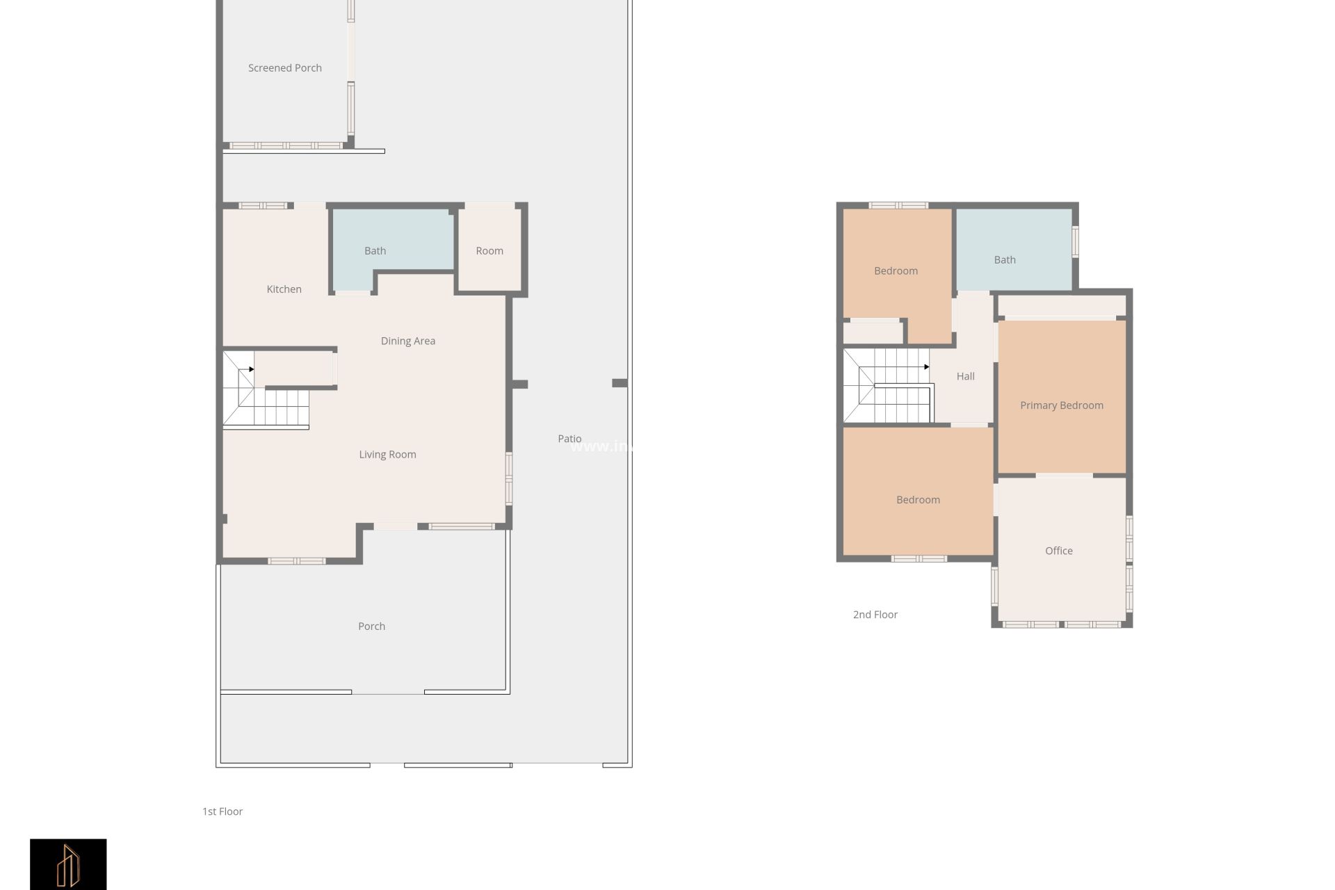
Rymligt parhus i söderläge beläget i ett mycket eftertraktat bostadsområde, inom gångavstånd till La Zenia Boulevard, restauranger, marknad och i princip alla bekvämligheter. Fastigheten ligger i ett inhägnat område med gemensam pool. Entréplanet består av vardagsrum, kök, badrum och förråd. På övervåningen finns en hall, 3 sovrum och ett badrum samt ett kontor som även kan användas som sovrum. Bostaden har en delvis täckt terrass vid entrén samt en trevlig bakgård med stor terrass och ett uterum som kan användas både som matsal och förråd. Det finns även ett extra förråd. Parkering finns på tomten. Byggår: 1999 3 sovrum 2 badrum Tomt: 210 m² Boyta: 88 m² Fastighetsskatt (IBI): 320 Parkering på tomten Förråd Avstånd: Strand: 1 500 m Flygplats: 50 km La Zenia Boulevard: 800 m Restauranger: 500 m

Informationen som ges här är föremål för felskrivningar och utgör inte en del av något kontrakt. Erbjudandet kan ändras eller dras tillbaka utan förvarning. Priserna inkluderar inte övriga omkostnader.
© 2026 Invest for Home · Juridisk anteckning · Privatliv · Cookies · Web karta
Först och främst tack för att du kontaktade oss.
Vi har mottagit din begäran om egenskapsreferensen:ND-87951. En av våra agenter kommer att kontakta dig så snart som möjligt.
Först och främst tack för att du kontaktade oss.
Vi har fått en begäran om en rapport om du sänker priset på fastigheten med referensen: ND-87951
Under tiden kan du titta på det här urvalet av liknande egenskaper som kan vara av intresse för dig:
