Lägenhet till salu i Torrevieja – Nära centrum

Ref.: TO-CE-A23
34m2
1
1
Gemensam
85.000€
Informera prisfall

Beskrivning

Lägenhet till salu i Torrevieja – Nära centrum

Lägenhet till salu i Torrevieja, belägen nära stadens centrum och intill Colegio La Inmaculada. Bostaden har ett praktiskt läge med alla vardagliga bekvämligheter inom gångavstånd.

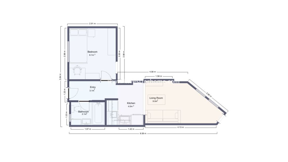
Lägenheten har 1 sovrum och 1 badrum, med en total yta på 33 m². Den ligger på tredje våningen i en byggnad med hiss och gemensam pool.

Bostaden är i gott skick och säljs som den visas på bilderna, redo att användas eller hyras ut.

Tack vare det centrala läget finns butiker, restauranger och alla nödvändiga tjänster i närheten.

Läs mer

Fakta

Sovrum: 1
Badrum: 1
Boarea: 34m2
Vardagsrum: 11m2
Inbyggda garderober: 2
Energiklass: Pågående
Orientering: öster
Avstånd till strand: 5
Avstånd till flygplatsen: 45 Km.
Avstånd till fritid: 2
Avstånd till golfbana: 15 Km.

Beskrivning

Aluminiumfönster
Avluftshuva
Dubbelglasfönster
Hiss
Intercom
Kylskåp
Möblerad
Öppet kök
Optisk fiber internet
Persienner
Tvättmaskin
Energiklassificering
Energiklassificering:
Pågående

Läget

Ekonomi

Informationen som ges här är föremål för felskrivningar och utgör inte en del av något kontrakt. Erbjudandet kan ändras eller dras tillbaka utan förvarning. Priserna inkluderar inte övriga omkostnader.

Beräkna inteckningar

Valutaväxling

  • Pounds: 74.039 GBP
  • Ryska rubeln: 74.039 RUB
  • Schweiziska franc: 78.549 CHF
  • Kinesiska yuan: 679.720 CNY
  • Dollar: 99.544 USD
  • Svenska kronor: 921.060 SEK
  • Den norska kronan: 944.903 NOK

Kontakta oss

Responsable del tratamiento: Invest for Home, Finalidad del tratamiento: Gestión y control de los servicios ofrecidos a través de la página Web de Servicios inmobiliarios, Envío de información a traves de newsletter y otros, Legitimación: Por consentimiento, Destinatarios: No se cederan los datos, salvo para elaborar contabilidad, Derechos de las personas interesadas: Acceder, rectificar y suprimir los datos, solicitar la portabilidad de los mismos, oponerse altratamiento y solicitar la limitación de éste, Procedencia de los datos: El Propio interesado, Información Adicional: Puede consultarse la información adicional y detallada sobre protección de datos Aquí.

© 2026 Invest for Home · Juridisk anteckning · Privatliv · Cookies · Web karta

WhatsApp