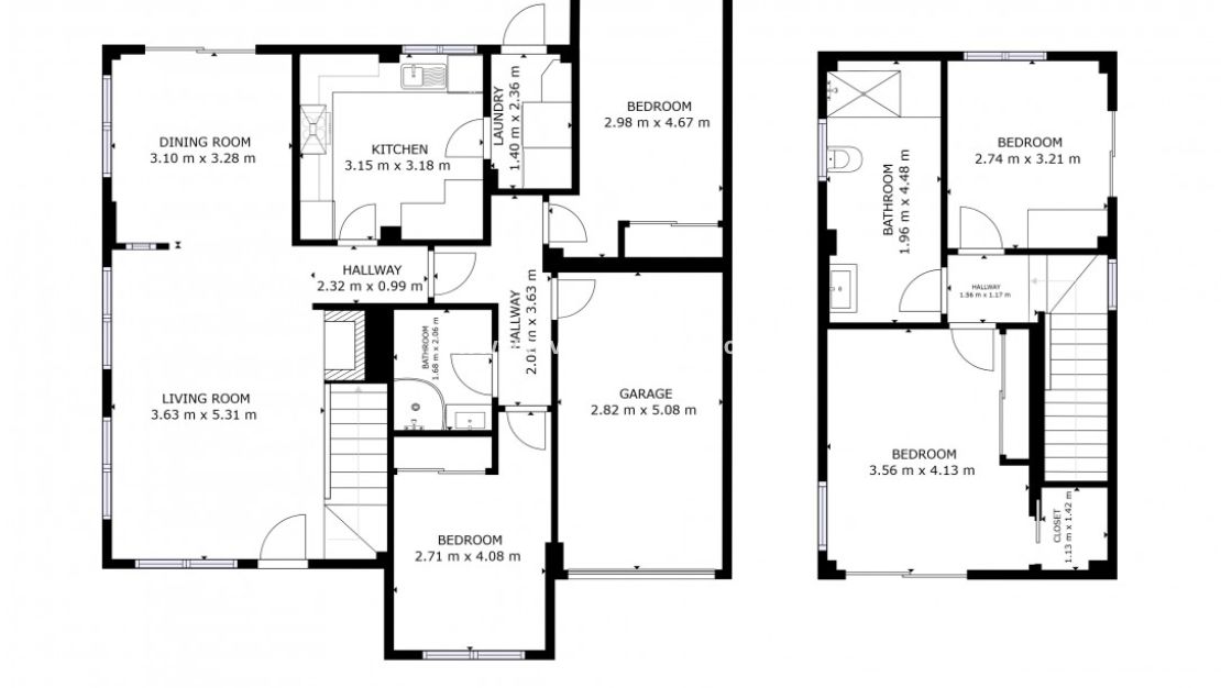
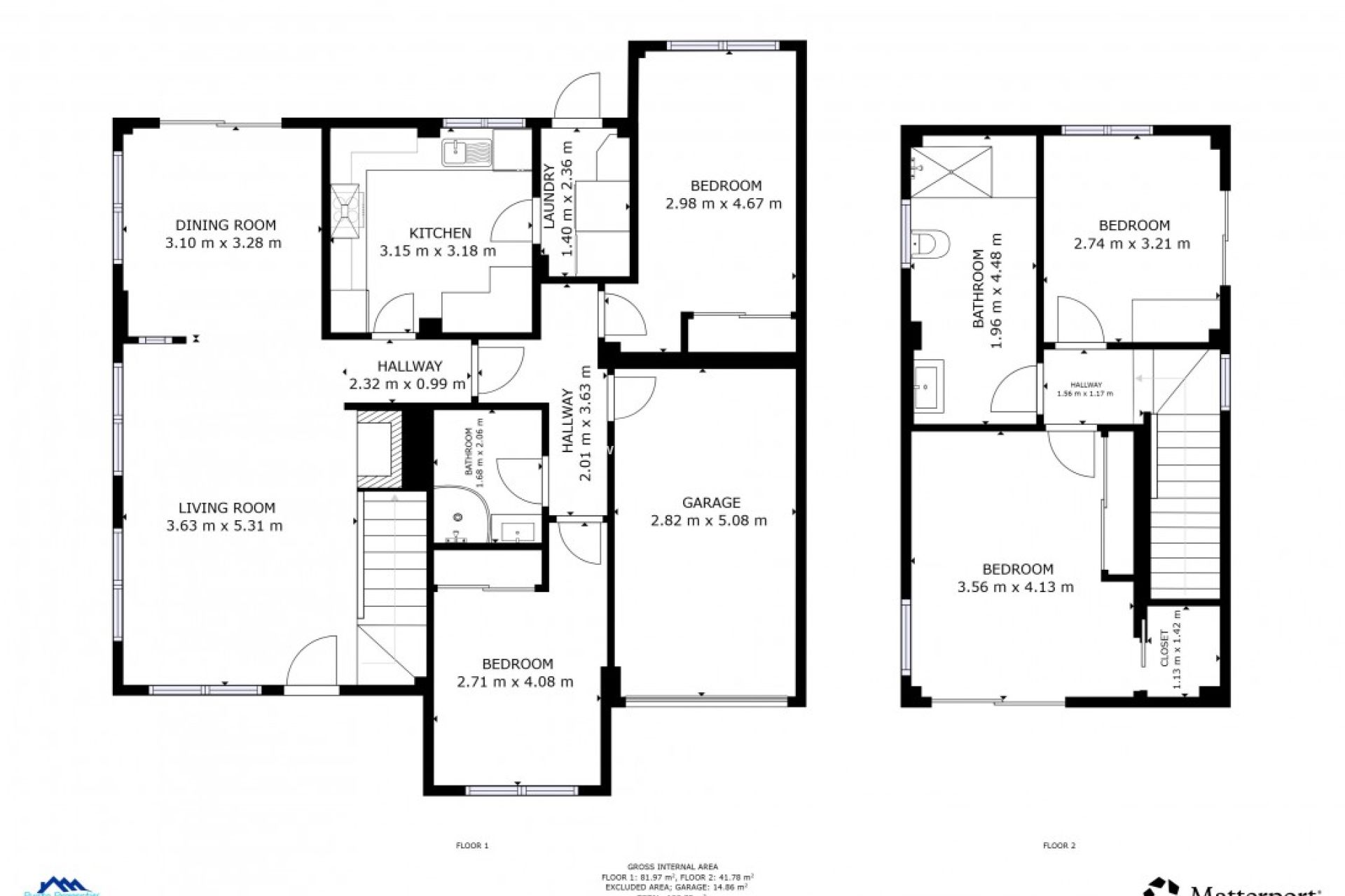
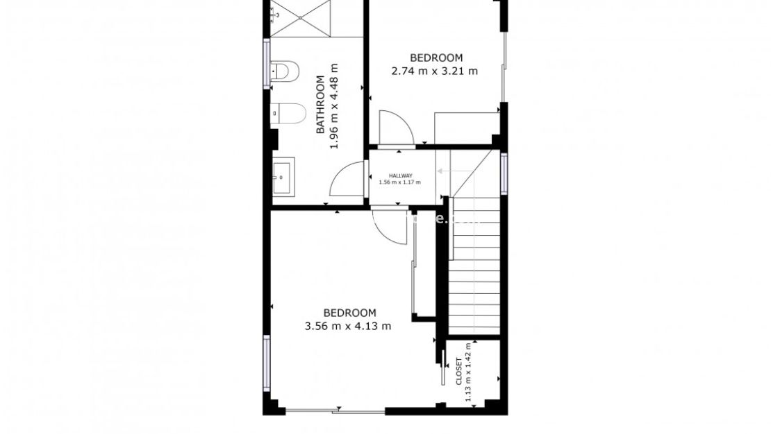
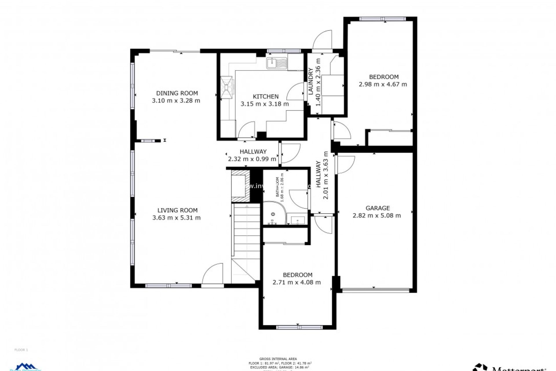
This typical Spanish, spacious property is for sale in Los Alcázares, located in the quiet and pleasant area of Lomas del Rame. The house is set on a large plot of over 400 m² and features a private swimming pool, perfect for enjoying the Spanish climate.The property offers 3 large bedrooms, a separate office (ideal as a home office or an additional bedroom) and 2 bathrooms. In addition, there is a garage, providing extra comfort and storage space.The house is equipped with air conditioning in the living room and all bedrooms. The living room also has a gas stove, ideal for the cooler winter months.Lomas del Rame is a calm and friendly urbanisation with a relaxed atmosphere and two bars within the urbanisation. The beautiful Mar Menor beaches are only 3 km away, and all essential amenities are close by.This property is ideal for permanent living, but also perfect as a holiday home.Schedule your viewing today and discover this fantastic property!

This info given here is subject to errors and do not form part of any contract. The offer can be changed or withdrawn without notice. Prices do not include purchase costs.
First of all, thanks for contacting us.
We have received your request regarding the property reference: ND-94143. One of our agents will contact you as soon as possible.
First of all, thanks for contacting us.
We have received a request for a report if you lower the price of the property with the reference: ND-94143
In the meantime, please have a look at this selection of similar properties, that might be of interest to you:
