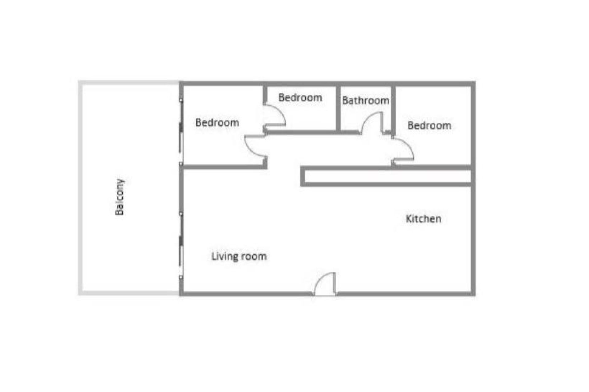
Zonnig en modern 2-slaapkamer appartement in Las Colinas Golf Stap binnen in dit lichte en moderne appartement waar comfort, stijl en licht samenkomen. De open keuken en woonkamer vormen een uitnodigende ruimte om te koken, ontspannen of tijd door te brengen met familie en vrienden, met veel natuurlijk licht. Vanuit de woonkamer is er direct toegang tot het zonnige balkon, ideaal voor koffie in de ochtend, een borrel in de avond of een rustig moment met een boek. De master slaapkamer beschikt over een en-suite badkamer en directe toegang tot het balkon, wat zorgt voor een rustige plek om tot rust te komen. De tweede slaapkamer is veelzijdig en kan worden gebruikt als gastenverblijf, kantoor of extra ruimte voor familie en vrienden. Extra voorzieningen zijn een privé garage, opslagruimte en toegang tot een goed onderhouden gemeenschappelijk zwembad, ideaal om af te koelen op warme dagen of te genieten van de Spaanse zon. Gelegen in een rustige omgeving maar toch dicht bij restaurants, cafés, supermarkten en prachtige stranden biedt dit appartement de perfecte balans tussen ontspannen wonen en alles binnen handbereik.

Deze informatie is hier onderhevig aan fouten en maakt geen deel uit van een contract. De aanbieding kan zonder kennisgeving worden gewijzigd of ingetrokken. Prijzen zijn exclusief aankoopkosten.