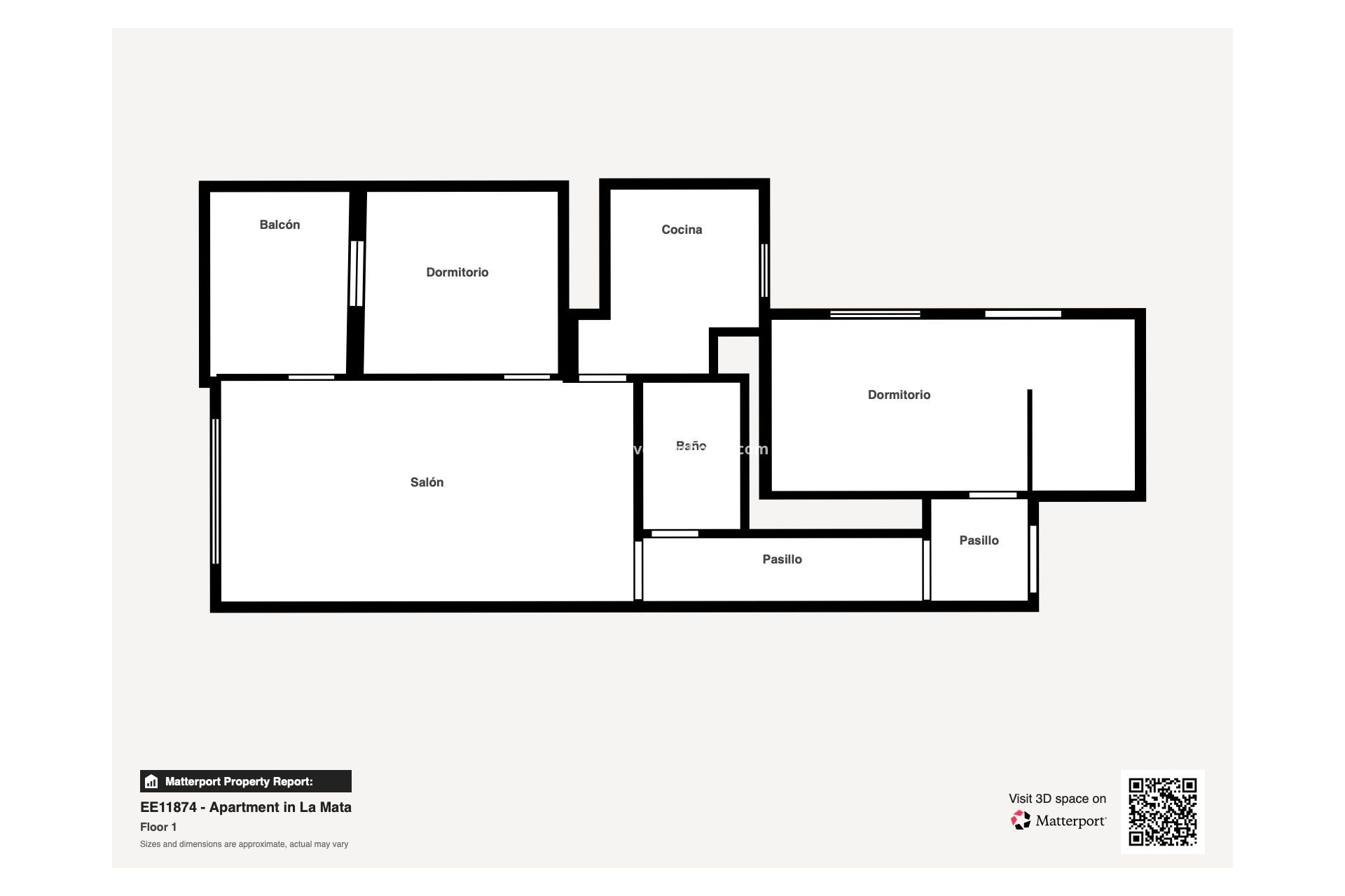
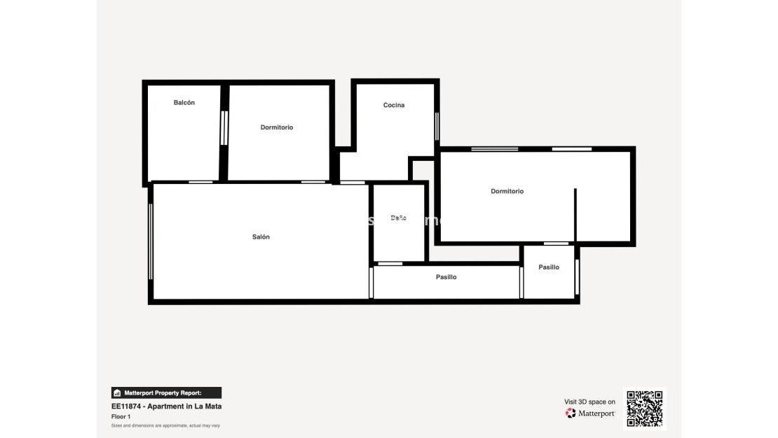
Apartamento con terraza y vista lateral al mar en La Mata, Torrevieja Vivienda situada en el centro de La Mata, a pocos minutos caminando de la playa y rodeada de todos los servicios, comercios, bares y restaurantes. Ubicada en una primera planta con ascensor, cuenta con 68 m² y una distribución cómoda con espacios amplios. Dispone de 2 dormitorios con armarios empotrados, 1 baño, cocina independiente y salón luminoso con salida a balcón con vista lateral al mar. Incluye patio trasero abierto con zona de lavandería y almacenamiento. Se vende amueblada, equipada y en buen estado. Características destacadas 2 dormitorios 1 baño 68 m² construidos Primera planta con ascensor Balcón con vista lateral al mar Cocina independiente Patio trasero con lavandería y trastero Aire acondicionado Amueblado y equipado Ventanas con doble acristalamiento Vivienda luminosa Buena distribución Año de construcción: 1996 CEE: E Gastos anuales: IBI: 260 € Comunidad: 350 €

Esta información que se proporciona aquí está sujeta a errores y no forma parte de ningún contrato. La oferta se puede cambiar o retirar sin previo aviso. Los precios no incluyen los costes de compra
© 2026 Invest for Home · Nota legal · Privacidad · Cookies · Mapa Web
En primer lugar, gracias por contactarnos.
Hemos recibido su solicitud con respecto a la referencia de propiedad:ND-14193. Uno de nuestros agentes se pondrá en contacto con usted lo antes posible.
En primer lugar, gracias por contactarnos.
Hemos recibido una solicitud de informe si baja el precio de la propiedad con la referencia: ND-14193
Mientras tanto, eche un vistazo a esta selección de propiedades similares que podrían ser de su interés:
